Fungsi Pondasi Dan Jenis-Jenis Pondasi
A. FUNGSI PONDASI
Pondasi dalam suatu bangunan konstruksi mempunyai peranan penting sebab berfungsi sebagai penahan atau penopang beban bangunan yang ada diatasnya untuk diteruskan ke lapisan tanah yang ada dibawahnya. Untuk menghasilkan bangunan yang berpengaruh dan kokoh, pondasi suatu bangunan harus direncanakan dengan baik.
Perencanaan dalam pemilihan pondasi suatu bangunan ditentukan berdasarkan jenis tanah, kekuatan dan daya dukung tanah dan beban bangunan itu sendiri. Pada tanah yang mempunyai daya dukung baik, maka pondasinya juga membutuhkan konstruksi yang sederhana. Jika tanahnya labil dan mempunyai daya dukung yg jelek, maka penentuan pondasinya juga harus lebih teliti. Pondasi suatu konstruksi bangunan harus bisa menahan beban :
Beban horizontal/beban geser, mirip beban akhir gaya tekan tanah
Beban mati / dead load, atau berat sendiri bangunan
Beban hidup/live load,atau beban sesuai fungsi bangunan.
Beban gempa
Beban angin
Gaya angkat air
Momen dan torsi
Standar daya dukung tanah berdasarkan Peraturan Pembebanan Indonesia Untuk Gedung tahun 1983 ialah :
Tanah keras (lebih dari 5 kg/cm2).
Tanah sedang (2-5 kg/cm2)
Tanah lunak (0,5-2 g/cm2)
Tanah amat lunak (0-0,5 kg/cm2)
Klasifikasi daya dukung tanah tersebut sanggup ditentukan melalui pengujian secara sederhana yaitu dengan cara diberi beban 5 kg pada tanah berukuran 1 cm x 1 cm.Jika tanah tidak mengalami penurunan atau amblas maka tanah tersebut diklasifikasikan sebagai tanah keras
B. JENIS-JENIS PONDASI
Pondasi sanggup dibagi atas 2 penggalan yaitu :
1. Pondasi Dangkal
2. Pondasi Dalam
1. Pondasi Dangkal
Yang dimaksud pondasi dangkal ialah pondasi yang kedalamannya tidak lebih dari 3 m dari permukaan tanah. Pondasi dangkal ini biasanya dipakai pada konstruksi bangunan sederhana mirip rumah tinggal. Adapun jenis-jenis pondasi yang termasuk dalam pondasi dangkal ialah :
> Pondasi menerus ialah jenis pondasi yang dipakai untuk mendukung beban memanjang, baik untuk mendukung beban dinding atau beban kolom dimana penempatan kolom dalam jarak yang erat dan fungsional kolom tidak terlalu mendukung beban berat .Pondasi yang termasuk pondasi menerus ialah pondasi kerikil kali, pondasi kerikil bata.
Sumber http://smknpastibisa2018.blogspot.com
Pondasi dalam suatu bangunan konstruksi mempunyai peranan penting sebab berfungsi sebagai penahan atau penopang beban bangunan yang ada diatasnya untuk diteruskan ke lapisan tanah yang ada dibawahnya. Untuk menghasilkan bangunan yang berpengaruh dan kokoh, pondasi suatu bangunan harus direncanakan dengan baik.
Perencanaan dalam pemilihan pondasi suatu bangunan ditentukan berdasarkan jenis tanah, kekuatan dan daya dukung tanah dan beban bangunan itu sendiri. Pada tanah yang mempunyai daya dukung baik, maka pondasinya juga membutuhkan konstruksi yang sederhana. Jika tanahnya labil dan mempunyai daya dukung yg jelek, maka penentuan pondasinya juga harus lebih teliti. Pondasi suatu konstruksi bangunan harus bisa menahan beban :
Beban horizontal/beban geser, mirip beban akhir gaya tekan tanah
Beban mati / dead load, atau berat sendiri bangunan
Beban hidup/live load,atau beban sesuai fungsi bangunan.
Beban gempa
Beban angin
Gaya angkat air
Momen dan torsi
Standar daya dukung tanah berdasarkan Peraturan Pembebanan Indonesia Untuk Gedung tahun 1983 ialah :
Tanah keras (lebih dari 5 kg/cm2).
Tanah sedang (2-5 kg/cm2)
Tanah lunak (0,5-2 g/cm2)
Tanah amat lunak (0-0,5 kg/cm2)
Klasifikasi daya dukung tanah tersebut sanggup ditentukan melalui pengujian secara sederhana yaitu dengan cara diberi beban 5 kg pada tanah berukuran 1 cm x 1 cm.Jika tanah tidak mengalami penurunan atau amblas maka tanah tersebut diklasifikasikan sebagai tanah keras
B. JENIS-JENIS PONDASI
Pondasi sanggup dibagi atas 2 penggalan yaitu :
1. Pondasi Dangkal
2. Pondasi Dalam
1. Pondasi Dangkal
Yang dimaksud pondasi dangkal ialah pondasi yang kedalamannya tidak lebih dari 3 m dari permukaan tanah. Pondasi dangkal ini biasanya dipakai pada konstruksi bangunan sederhana mirip rumah tinggal. Adapun jenis-jenis pondasi yang termasuk dalam pondasi dangkal ialah :
> Pondasi menerus ialah jenis pondasi yang dipakai untuk mendukung beban memanjang, baik untuk mendukung beban dinding atau beban kolom dimana penempatan kolom dalam jarak yang erat dan fungsional kolom tidak terlalu mendukung beban berat .Pondasi yang termasuk pondasi menerus ialah pondasi kerikil kali, pondasi kerikil bata.
Gambar Pondasi Menerus Batu Kali
Gambar Pondasi Menerus Batu Bata
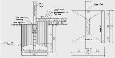
> Pondasi setempat ialah pondasi untuk mendukung beban titik mirip kolom praktis, tiang kayu pada rumah sederhana atau pada titik kolom struktural.Pondasi yang termasuk dalam pondasi setempat ialah pondasi telapak/foot plate.Pondasi telapak merupakan pondasi beton bertulang dan berbentuk persegi.
Gambar Pondasi Telapak/ Foot Plat
> Pondasi raft/pondasi tikar ialah pondasi plat beton bertulang yang lebar dan membentang pada area pondasi yang ditentukan, ini dipakai untuk mengembangkan beban yang ditopang ke seluruh area. Kelebihan dari pondasi raft ini ialah untuk mengurangi penurunan yang terjadi di area tertentu, plat beton akan mengimbangi jumlah beban yang harus dipikul sehingga bisa rata kesemua pondasi, jenis pondsi ini biasanya dipakai untuk tanah dengan keadaan lunak atau empuk.
Gambar Pondasi Raft / Pondasi Tikar
2. Pondasi Dalam
Pondasi dalam ialah pondasi yang didirikan pada kedalaman lebih dari 3 m dari permukaan tanah dimana daya dukung dasar pondasi dipengaruhi oleh beban struktural dan kondisi permukaan tanah. Pondasi dalam sanggup dipakai untuk mentransfer beban ke lapisan yang lebih dalam untuk mencapai kedalaman tertentu hingga didapat jenis tanah yang sanggup mendukung daya beban struktur bangunan sehingga jenis tanah yang tidak cocok di erat permukaan tanah sanggup dihindari.Biasanya pondasi dalam ini dipakai pada konstruksi bangunan gedung bertingkat.Yang termasuk dalam pondasi dalam ialah :
> Pondasi tiang pancang ialah pondasi yang memakai tiang beton jadi / pre cast yang pribadi ditancapkan pribadi ke dalam tanah dengan memakai mesin pemancang. Karena ujung tiang pancang lancip ibarat paku, oleh sebab itu tiang pancang tidak memerlukan proses pengeboran. Pondasi tiang pancang dipergunakan pada tanah-tanah lembek, tanah berawa, dengan kondisi daya dukung tanah (sigma tanah) kecil, kondisi air tanah tinggi dan tanah keras pada posisi sangat dalam.Selain tiang pancang beton juga bisa memakai tiang pancang baja
Gambar Pondasi Tiang Pancang
> Pondasi bore pile ialah pondasi dalam yang dibangun di dalam permukaan tanah hingga kedalaman tertentu dengan cara menciptakan lubang dengan cara pengeboran tanah. Setelah elevasi kedalaman /toe level pengeboran tercapai kemudian pondasi pile dilakukan dengan pengecoran beton bertulang terhadap lubang yang sudah di bor. Sisitim pengeboran sanggup dialakukan dalam aneka macam jenis baik sistim maual maupun sistim hidrolik. Besar diameter dan kedalaman galian dan juga sistim penulangan beton bertulang didesain berdasarkan daya dukung tanah dan beban rencana/ desain load yang akan dipikul. Fungsional pondasi ini juga ditujukan untuk menahan beban struktur melawan gaya angkat dan juga membantu struktur dalam melawan kekuatan gaya lateral dan gaya guling.
Gambar Pondasi Bore Pile
Demikianlah sedikit klarifikasi mengenai pondasi, fungsi pondasi dan jenis-jenis pondasi yang biasa dipakai pada konstruksi bangunan.






0 Response to "Fungsi Pondasi Dan Jenis-Jenis Pondasi"
Posting Komentar